Aktualne informacje prosto na Twój adres e-mail
Aktualne informacje prosto na Twój adres e-mail
Na Skale w Drzewicy zostanie wybudowany nowy budynek socjalny dla szesnastu rodzin. Prace budowlane właśnie się rozpoczynają. Przekazanie placu budowy nastąpiło w środę, 9 sierpnia 2023 roku.
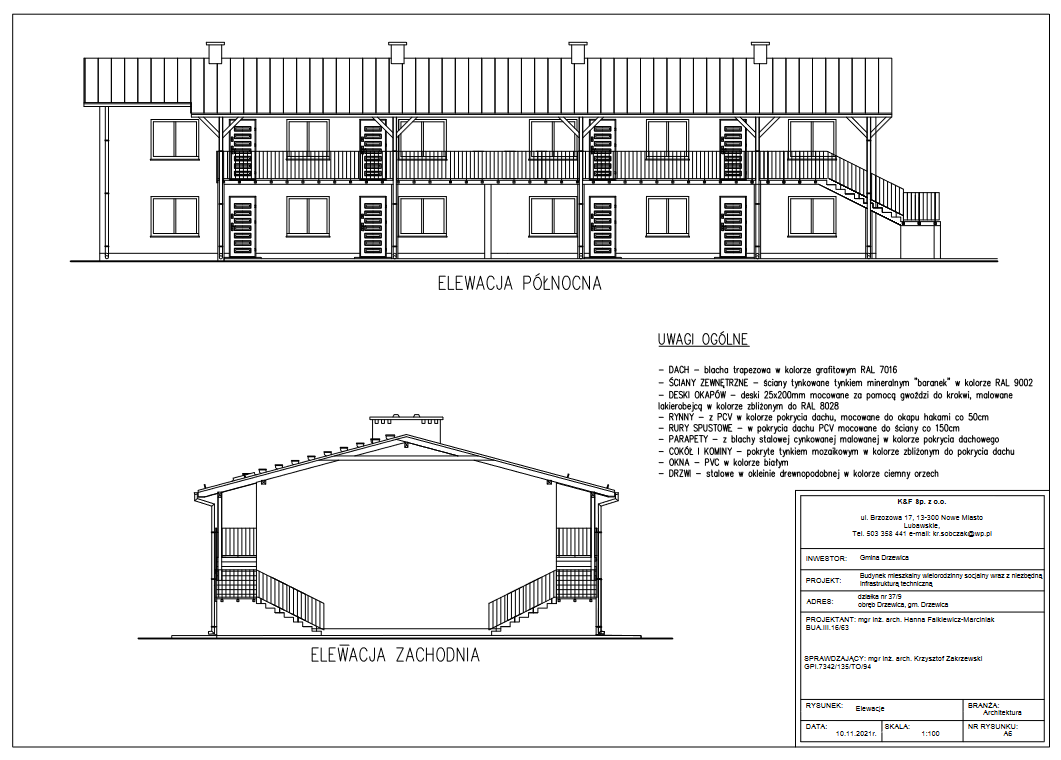
„Budowa budynku mieszkalnego wielorodzinnego socjalnego wraz z niezbędną infrastrukturą techniczną” to gminna inwestycja o wartości 2.999.893 zł. Zakłada budowę nowego wielorodzinnego budynku socjalnego, który zastąpi tzw. ceglankę na Skale.
Będzie to budynek wolnostojący o wymiarach: 29,34 m długości, 11,34 m szerokości i 7,7 m wysokości, niepodpiwniczony, z dwiema kondygnacjami mieszkalnymi i dwuspadowym dachem pokrytym blachą trapezową. Zostanie wykonany w technologii tradycyjnej. Powierzchnia zabudowy wyniesie 337,02 m2, kubatura 1.413 m3, natomiast powierzchnia użytkowa 554,16 m2.
Budynek pomieści 16 lokali mieszkalnych – połowę na parterze i połowę na piętrze. Osiem lokali większych o pow. 40,51 m2 będzie składać się z pokoju, łazienki, pokoju z aneksem kuchennym i wiatrołapu, natomiast 8 lokali mniejszych o pow. 28,76 m2 z pokoju z aneksem kuchennym i łazienką oraz z wiatrołapu. Do każdego z mieszkań będą prowadziły niezależne wejścia od strony północnej i południowej.
Obiekt zaprojektowany w standardzie dla budynków socjalnych zostanie wyposażony w instalacje: * zimnej wody doprowadzonej z miejskiej sieci wodociągowej * ciepłej wody z centralnego wymiennika ciepła (indywidualnie w każdym lokalu) * centralnego ogrzewania z kotłowni własnej na paliwo gazowe (w każdym lokalu) * kanalizacji sanitarnej z odprowadzeniem ścieków do sieci kanalizacji * elektryczną oświetleniową, piorunochronną.
Budowę realizuje firma ESINVEST Sp. z o.o. sp. k. z Opoczna, która na wykonanie zadania ma 18 miesięcy. Jeśli wszystko pójdzie zgodnie z planem, nowy obiekt będzie oddany do użytku w 2025 roku.
Dodajmy, że inwestycja pn. „Budowa budynku mieszkalnego wielorodzinnego socjalnego wraz z niezbędną infrastrukturą techniczną” została objęta dofinansowaniem Rządowego Programu Wsparcia Budowy Mieszkań Społecznych i Komunalnych. Wartość bezzwrotnego dofinansowania pochodzącego z Funduszu Dopłat i przyznanego przez Ministra Rozwoju i Technologii wynosi 80% kosztów inwestycji. Bezzwrotnego grantu udzieli Bank Gospodarstwa Krajowego.




